Piso reformado a estrenar en Recoletos, exterior y junto al Retiro

superficie
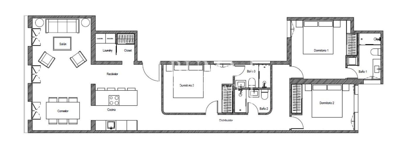
132 m²
Dormitorios
3
Baños
3
piso en venta
2.500.000 €
Vendida

Piso a estrenar de 132 m² completamente reformado y amueblado en la 4ª planta de un edificio clásico de 1900, ubicado en el prestigioso barrio de Recoletos, en el distrito de Salamanca, a pocos minutos del Parque del Retiro.

La vivienda destaca por su luminosidad, gracias a su altura y a sus tres balcones exteriores a la calle, que aportan amplitud y una excelente entrada de luz natural.

La zona de día ofrece un salón-comedor con cocina integrada, diseñado con un concepto abierto y funcional, además de una práctica zona independiente de lavandería.

En la zona de descanso se encuentran tres dormitorios y tres baños completos, dos de ellos en suite, lo que garantiza comodidad y privacidad. La vivienda ha sido reformada integralmente con materiales de calidad y se entrega totalmente equipada y lista para entrar a vivir.

Ubicada en una de las zonas más demandadas de Madrid, rodeada de comercios, restauración, servicios y excelentes comunicaciones, esta propiedad es una opción ideal tanto como residencia habitual como inversión en una de las áreas con mayor valor del mercado.

Características de la propiedad

aire acondicionado
calefacción
ascensor
amueblado
armarios empotrados
exterior
Certificado energético
Consumo energía Kw h/m² año
  • Pendiente
Emisiones Co/m² año
  • Pendiente

Sobre Recoletos

Ubicado en pleno corazón del distrito de Salamanca, el barrio de Recoletos en Madrid es sinónimo de exclusividad, elegancia y calidad de vida.

Sus avenidas arboladas, como la icónica Calle Serrano, reúnen boutiques de lujo, restaurantes de alta gastronomía y galerías de arte que convierten esta zona en una de las más codiciadas de la capital. Vivir en Recoletos significa disfrutar de la cercanía al Parque de El Retiro, un oasis verde ideal para pasear, practicar deporte o relajarse al aire libre.

Además, su excelente comunicación con el centro financiero y cultural de Madrid lo convierte en un punto estratégico tanto para familias como para profesionales. Las propiedades en venta en Recoletos destacan por su arquitectura señorial, pisos amplios y acabados de primer nivel. Invertir en vivienda en Recoletos es apostar por uno de los barrios más prestigiosos y con mayor proyección de Madrid.

Búsquedas relacionadas

Solicita más información
Ref. BRE0569

Propiedades similares

Piso de lujo en venta en Recoletos con espectacular terraza privada de 119m²
8.100.000 €
Ref: BRE0410

Piso de lujo en venta en Recoletos con espectacular terraza privada de 119m²

Recoletos
499 m²3 Dorm.4 Baños
Exclusiva propiedad en venta a estrenar, completamente reformada y amueblada con materiales de primera calidad. Ubicada en el corazón del barrio de Recoletos, a escasos minutos del parque de El Retiro, este piso se encuentra en un edificio señorial de 1912, representativo de la arquitectura clásica del barrio de Salamanca, con balcones, miradores y detalles originales cuidadosamente restaurados.  La propiedad destaca por una terraza única, con una superficie de 119m² diseñada por un reconocido estudio de paisajismo. Un espacio exterior privilegiado para disfrutar todo el año, ideal para reuniones sociales, cenas al aire libre o momentos de relax en un entorno privado y elegante.  En el interior, la vivienda combina diseño contemporáneo y elementos clásicos como molduras y cornisas originales. Dispone de un gran salón distribuido en varios ambientes con tres balcones a la calle, comedor principal y una amplia cocina con isla central y zona de lavandería independientes.  La zona de descanso incluye tres dormitorios en suite, un aseo de cortesía, una sala de estar o TV room con acceso directo a la terraza y un comedor informal con kitchenette. Todo el conjunto ha sido diseñado con un alto nivel de confort, incorporando tecnología domótica y sistema de climatización por aerotermia.  El edificio cuenta con un portal clásico , ascensor original con cabina de hierro y portero físico.  Una oportunidad única para vivir en una de las zonas más cotizadas de Madrid, en una propiedad singular con una de las terrazas privadas más impresionantes del distrito. 
Venta de  vivienda de obra nueva de lujo en edificio clásico reformado -Ubicación privilegiada en Recoletos, Barrio de Salamanca
3.777.000 €
Ref: BRE0438

Venta de vivienda de obra nueva de lujo en edificio clásico reformado -Ubicación privilegiada en Recoletos, Barrio de Salamanca

Recoletos
193 m²3 Dorm.3 Baños
Situada en el corazón de Recoletos, una de las zonas más prestigiosas del Barrio de Salamanca, esta exclusiva vivienda de obra nueva de 193 m² forma parte de una cuidada promoción de 14 propiedades prime. Un proyecto donde la arquitectura clásica se fusiona con el diseño contemporáneo, en una de las áreas más codiciadas de Madrid. Ubicada en un elegante edificio con fachada señorial del siglo XIX, la propiedad ha sido completamente renovada, conservando su carácter original y adaptándose a los estándares de confort y eficiencia del siglo XXI. Es un verdadero refugio urbano que combina historia, estilo y funcionalidad. La vivienda destaca por sus espacios amplios, luminosos y cuidadosamente distribuidos. La zona de día incluye un amplio salón comedor, una cocina abierta completamente equipada con electrodomésticos de alta gama y un aseo de cortesía. La zona de noche alberga un dormitorio principal con baño en suite y dos dormitorios adicionales que comparten un segundo baño completo. Todos los acabados son de primera calidad: sistema de climatización por aerotermia, domótica y materiales nobles que refuerzan el carácter exclusivo de la vivienda. Los residentes pueden disfrutar de zonas comunes excepcionales, como un jardín interior, piscina, gimnasio y un rooftop comunitario con vistas, ideal para relajarse o socializar en pleno centro de Madrid. El entorno ofrece una de las mejores experiencias de estilo de vida de la capital, rodeado de tiendas de lujo, galerías de arte, restaurantes gourmet, cafés con encanto y una oferta cultural incomparable. Entrega de llaves: Inicio de 2026
Venta de vivienda de obra nueva de lujo en edificio clásico reformado -Ubicación privilegiada en Recoletos, Barrio de Salamanca
4.037.000 €
Ref: BRE0439

Venta de vivienda de obra nueva de lujo en edificio clásico reformado -Ubicación privilegiada en Recoletos, Barrio de Salamanca

Recoletos
210 m²3 Dorm.3 Baños
Situada en el corazón de Recoletos, una de las zonas más prestigiosas del Barrio de Salamanca, esta exclusiva vivienda de obra nueva de 210 m² forma parte de una cuidada promoción de 14 propiedades prime. Un proyecto donde la arquitectura clásica se fusiona con el diseño contemporáneo, en una de las áreas más codiciadas de Madrid. Ubicada en un elegante edificio con fachada señorial del siglo XIX, la propiedad ha sido completamente renovada, conservando su carácter original y adaptándose a los estándares de confort y eficiencia del siglo XXI. Es un verdadero refugio urbano que combina historia, estilo y funcionalidad. La vivienda destaca por sus espacios amplios, luminosos y cuidadosamente distribuidos. La zona de día incluye un amplio salón comedor, una cocina abierta completamente equipada con electrodomésticos de alta gama y un aseo de cortesía. La zona de noche alberga un dormitorio principal con baño en suite y dos dormitorios adicionales que comparten un segundo baño completo. Todos los acabados son de primera calidad: sistema de climatización por aerotermia, domótica y materiales nobles que refuerzan el carácter exclusivo de la vivienda. Los residentes pueden disfrutar de zonas comunes excepcionales, como un jardín interior, piscina, gimnasio y un rooftop comunitario con vistas, ideal para relajarse o socializar en pleno centro de Madrid. El entorno ofrece una de las mejores experiencias de estilo de vida de la capital, rodeado de tiendas de lujo, galerías de arte, restaurantes gourmet, cafés con encanto y una oferta cultural incomparable. Entrega de llaves: Inicio de 2026

Propiedades vistas recientemente

Vivienda en venta en el Barrio de Salamanca
3.800.000 €
Ref: BRE0556

Vivienda en venta en el Barrio de Salamanca

Castellana
439 m²5 Dorm.4 Baños
Ubicada en una finca clásica y representativa del tramo más consolidado del Barrio de Salamanca, esta magnífica propiedad combina amplitud, carácter arquitectónico y una ubicación estratégica en una de las direcciones más prestigiosas de Madrid. Se trata de un piso bajo elevado, con estancias de proporciones generosas, techos altos y elementos originales que aportan personalidad y elegancia. La orientación oeste y su condición exterior garantizan una luz natural muy agradable durante la tarde, mientras que las piezas interiores disfrutan de la tranquilidad y luminosidad de un amplio patio de manzana. Actualmente configurada como despacho profesional, la propiedad ofrece una implantación funcional que permite su uso inmediato como oficina, sede corporativa, despacho profesional, fundación o representación institucional. Al mismo tiempo, el edificio admite uso residencial, lo que brinda la posibilidad de desarrollar una vivienda de alto nivel, con una distribución de 5 dormitorios y 4 baños, en una de las zonas más demandadas de la capital. Como valor añadido, incluye un amplio espacio abuhardillado independiente, exterior y con múltiples posibilidades de uso: desde archivo o almacén hasta estudio privado o zona de servicio. Además cuenta con una buen plaza de garaje en edificio cercano. Una propiedad singular, versátil y con gran proyección, ideal tanto para usuario final como para inversor que busque ubicación, imagen y potencial de transformación.
Utilizamos cookies propias y de terceros para hacer funcionar de manera segura nuestra página web y personalizar su contenido. Igualmente, utilizamos cookies para medir y obtener datos de la navegación que realiza y para ajustar la publicidad a sus gustos y preferencias. Pulse el botón "Aceptar todas" para confirmar que ha leído y aceptado la información presentada. Para administrar o deshabilitar estas cookies haga click en "Configuración". Puede obtener más información en nuestra política de cookies.
Modificar cookies
Técnicas y funcionales Siempre activas
Este sitio web utiliza Cookies propias para recopilar información con la finalidad de mejorar nuestros servicios. Si continua navegando, supone la aceptación de la instalación de las mismas. El usuario tiene la posibilidad de configurar su navegador pudiendo, si así lo desea, impedir que sean instaladas en su disco duro, aunque deberá tener en cuenta que dicha acción podrá ocasionar dificultades de navegación de la página web.
Analíticas y personalización
Permiten realizar el seguimiento y análisis del comportamiento de los usuarios de este sitio web. La información recogida mediante este tipo de cookies se utiliza en la medición de la actividad de la web para la elaboración de perfiles de navegación de los usuarios con el fin de introducir mejoras en función del análisis de los datos de uso que hacen los usuarios del servicio. Permiten guardar la información de preferencia del usuario para mejorar la calidad de nuestros servicios y para ofrecer una mejor experiencia a través de productos recomendados.
Marketing y publicidad
Estas cookies son utilizadas para almacenar información sobre las preferencias y elecciones personales del usuario a través de la observación continuada de sus hábitos de navegación. Gracias a ellas, podemos conocer los hábitos de navegación en el sitio web y mostrar publicidad relacionada con el perfil de navegación del usuario.