e

superficie
85 m²
Dormitorios
3
Baños
2
piso en venta
825.000 €

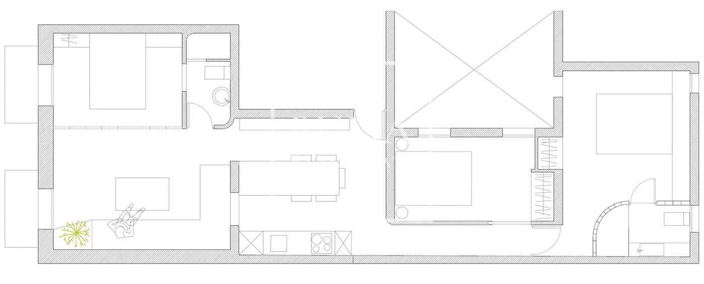
Exclusivo piso  en venta tipo loft, completamente renovado por un estudio de arquitectura ubicado en un  edificio clásico del centro de Madrid. La vivienda combina el encanto histórico con un diseño contemporáneo. 

Con orientación sur y dos balcones exteriores, disfruta de abundante luz natural y vistas a los tejados del casco histórico. Cada elemento ha sido diseñado a medida: cocina abierta de autor, armarios empotrados, muebles de baño, duchas italianas y suelo de madera natural, todo realzado por una iluminación cálida y eficiente. 

La distribución integra un espacio open space con salón, comedor y cocina, un dormitorio principal con baño en suite, un segundo dormitorio con armario empotrado y un tercer espacio acristalado y modular, ideal como despacho o dormitorio de invitados. Estas dos últimas habitaciones comparten cuarto de baño. 

Una vivienda única que combina historia y  diseño en el corazón de Madrid. 

Características de la propiedad

aire acondicionado
calefacción
amueblado
balcón
armarios empotrados
exterior
Certificado energético
Consumo energía Kw h/m² año
  • Pendiente
Emisiones Co/m² año
  • Pendiente

Sobre Palacio

El barrio de Palacio, en el distrito Centro, es uno de los más históricos y emblemáticos de Madrid. Alberga monumentos icónicos como el Palacio Real, la Catedral de la Almudena y la Plaza de Oriente, convirtiéndolo en un lugar lleno de cultura y patrimonio. Sus calles combinan la majestuosidad de la arquitectura clásica con plazas tranquilas, cafés tradicionales y rincones llenos de encanto.

Vivir en Palacio significa estar rodeado de historia sin renunciar a las comodidades modernas, gracias a su excelente comunicación con el resto de la ciudad y su amplia oferta de servicios. Las propiedades en este barrio son muy demandadas, desde pisos con vistas privilegiadas hasta viviendas rehabilitadas con acabados de lujo.

Invertir en Palacio es apostar por un entorno único donde la tradición y la elegancia se combinan con la vida urbana.

Solicita más información
Ref. BRE0491

Propiedades vistas recientemente

Vivienda de lujo reformada en Recoletos, junto al Retiro
4.700.000 €
Ref: BRE0488

Vivienda de lujo reformada en Recoletos, junto al Retiro

Recoletos
242 m²3 Dorm.4 Baños
Esta luminosa vivienda de 242 m² se encuentra en una de las calles más emblemáticas de Recoletos, en pleno corazón del Barrio de Salamanca y a pocos metros del Parque del Retiro. Situada en la cuarta planta de un edificio clásico con ascensor y servicio de portería, combina la elegancia arquitectónica tradicional con el confort del diseño contemporáneo. La orientación este, junto con sus tres balcones a la calle, garantiza una luz natural excepcional durante todo el día, que realza la amplitud y el carácter de cada estancia. La reforma integral, realizada con materiales y acabados de primer nivel, ofrece una distribución funcional y equilibrada. La zona de día se organiza en un gran espacio abierto donde se integran el salón-comedor y una moderna cocina open plan con isla central, equipada con electrodomésticos de alta gama. Dispone además de una zona de lavandería independiente, que aporta un extra de comodidad y practicidad al conjunto. La zona privada cuenta con tres dormitorios en suite, todos con baño propio y armarios empotrados, lo que garantiza confort e independencia. Detalles como la carpintería original restaurada, los suelos de madera natural, la piedra natural de la zona de la cocina y la cuidada iluminación aportan carácter y sofisticación a cada rincón. La propiedad se completa con un trastero abuhardillado de 12 m², que ofrece un práctico y valioso espacio de almacenaje, un plus de comodidad en pleno Recoletos. Una oportunidad única para vivir o invertir en una propiedad de lujo en Recoletos, una de las zonas más prestigiosas y demandadas de Madrid.
Exclusiva vivienda de lujo a estrenar en el corazón del Barrio de Salamanca
5.900.000 €
Ref: BRE0493

Exclusiva vivienda de lujo a estrenar en el corazón del Barrio de Salamanca

Castellana
401 m²4 Dorm.5 Baños
Buma Real Estate presenta esta elegante propiedad completamente reformada, ubicada en una de las zonas más codiciadas de Madrid. Con una cuidada distribución y una orientación privilegiada, esta vivienda de generosas dimensiones combina amplitud, luz natural y diseño contemporáneo en un entorno residencial incomparable. La vivienda se abre con un hall de entrada que da paso a un acogedor espacio de lectura con chimenea, un rincón ideal para el descanso o la contemplación. A continuación, un amplio salón-comedor exterior, inundado de luz gracias a su balcón orientado a la calle, ofrece un ambiente sofisticado y funcional. La cocina, independiente y equipada con electrodomésticos de alta gama, se conecta mediante puertas correderas, permitiendo una integración fluida con la zona social. Un aseo de cortesía completa esta parte de la vivienda. La zona privada cuenta con cuatro dormitorios, tres de ellos con baño en suite. La suite principal, de orientación exterior, dispone además de salida a una terraza privada que aporta calidez y exclusividad. La propiedad incluye plaza de garaje de acceso directo y trastero, un valor añadido que refuerza su comodidad y funcionalidad. Ubicada en un edificio moderno con servicio de portería y un solo vecino por planta, esta vivienda ofrece privacidad, confort y seguridad en una de las direcciones más prestigiosas del Barrio de Salamanca. En Buma Real Estate, gestionamos propiedades únicas en las zonas más exclusivas de Madrid. Algunas de nuestras viviendas se comercializan de forma confidencial (off market), disponibles únicamente bajo solicitud directa. Si desea más información sobre esta propiedad o descubrir otras oportunidades exclusivas, le invitamos a visitar nuestra web o contactar con nuestro equipo especializado.
Utilizamos cookies propias y de terceros para hacer funcionar de manera segura nuestra página web y personalizar su contenido. Igualmente, utilizamos cookies para medir y obtener datos de la navegación que realiza y para ajustar la publicidad a sus gustos y preferencias. Pulse el botón "Aceptar todas" para confirmar que ha leído y aceptado la información presentada. Para administrar o deshabilitar estas cookies haga click en "Configuración". Puede obtener más información en nuestra política de cookies.
Modificar cookies
Técnicas y funcionales Siempre activas
Este sitio web utiliza Cookies propias para recopilar información con la finalidad de mejorar nuestros servicios. Si continua navegando, supone la aceptación de la instalación de las mismas. El usuario tiene la posibilidad de configurar su navegador pudiendo, si así lo desea, impedir que sean instaladas en su disco duro, aunque deberá tener en cuenta que dicha acción podrá ocasionar dificultades de navegación de la página web.
Analíticas y personalización
Permiten realizar el seguimiento y análisis del comportamiento de los usuarios de este sitio web. La información recogida mediante este tipo de cookies se utiliza en la medición de la actividad de la web para la elaboración de perfiles de navegación de los usuarios con el fin de introducir mejoras en función del análisis de los datos de uso que hacen los usuarios del servicio. Permiten guardar la información de preferencia del usuario para mejorar la calidad de nuestros servicios y para ofrecer una mejor experiencia a través de productos recomendados.
Marketing y publicidad
Estas cookies son utilizadas para almacenar información sobre las preferencias y elecciones personales del usuario a través de la observación continuada de sus hábitos de navegación. Gracias a ellas, podemos conocer los hábitos de navegación en el sitio web y mostrar publicidad relacionada con el perfil de navegación del usuario.