OFICINA PREMIUM EN ALQUILER - ALMAGRO

superficie
457 m²
Baños
2
oficina en alquiler
16.400 €

Presentamos una oficina única en alquiler, ubicada en el prestigioso barrio de Almagro, una de las zonas corporativas más consolidadas y demandadas de Madrid. Rodeada de edificios representativos, embajadas, despachos profesionales y firmas internacionales, esta localización ofrece una imagen impecable para cualquier empresa que busque posicionarse en un entorno elegante, seguro y rodeado de servicios.

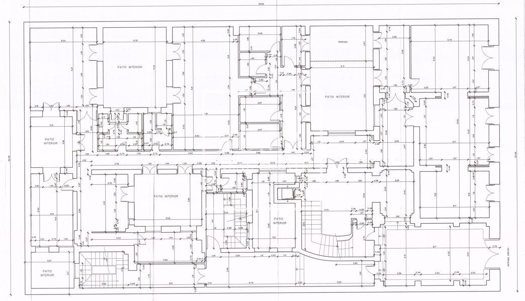
Cuenta con unos 457 m² que se van a reformar integramente y lo estrenará el nuevo inquilino. Esta oficina destaca por su amplitud, distribución versátil y espacios llenos de luz gracias a sus balcones a la calle y sus seis patios interiores y una terraza privada, perfecta para crear áreas de descanso o reuniones informales al aire libre.

La propiedad dispone de zonas amplias que permiten configurar puestos de trabajo abiertos, salas de reuniones, despachos privados o espacios creativos según las necesidades de cada empresa. Además, cuenta con cocina equipada, baños renovados y múltiples áreas de almacenamiento, creando un entorno cómodo y funcional para grandes equipos.

Un edificio clásico con carácter:
La oficina se encuentra en un edificio clásico, característico de esta zona señorial de Madrid, con techos altos que aportan amplitud y una sensación de prestigio en cada estancia. Su arquitectura tradicional y cuidada estética lo convierten en un espacio representativo para cualquier compañía que busque transmitir solidez y profesionalismo desde el primer momento.

Su ubicación en Chamberí asegura una excelente conexión mediante transporte público, proximidad a restaurantes, comercios y todos los servicios que hacen del distrito uno de los más atractivos para empresas de alto nivel.

Una oportunidad única para ubicar tu empresa en un espacio representativo, moderno y con un enorme potencial para crecer.

Contáctanos ahora para mas información, fotos y vídeo, o agendar una visita con nuestros profesionales.

Sobre Almagro

Ubicado en el elegante distrito de Chamberí, Almagro es uno de los barrios más distinguidos de Madrid, conocido por su arquitectura señorial y su atmósfera cultural. Sus calles arboladas albergan embajadas, galerías de arte, fundaciones y algunos de los palacetes más emblemáticos de la ciudad.

Almagro combina el encanto clásico de Madrid con una oferta gastronómica y de ocio de primer nivel, donde restaurantes de autor y cafés con historia conviven con museos y centros culturales. Su ubicación estratégica permite un acceso rápido tanto al centro histórico como a zonas de negocios, convirtiéndolo en una elección ideal para quienes buscan calidad de vida y exclusividad.

Las propiedades en Almagro destacan por sus amplios espacios, techos altos y acabados de lujo, ideales para familias, profesionales y amantes de la vida urbana sofisticada. Invertir en Almagro es apostar por un enclave consolidado, elegante y con gran proyección de valor en la capital.

Solicita más información
Ref. BRE0514

Propiedades similares

Alquiler de Dúplex en Almagro
1.400 €
Ref: BRE0533

Alquiler de Dúplex en Almagro

Almagro
50 m²1 Dorm.1 Baños
Buma Real Estate presenta este acogedor y luminoso bajo dúplex, situado en una de las zonas con más carácter y atractivo residencial de Madrid. Ubicado en una calle tranquila del barrio de Almagro, combina a la perfección la serenidad de una zona clásica con la cercanía al dinamismo de Ponzano y toda la oferta gastronómica y cultural de Chamberí. La vivienda destaca por sus techos altos, su excelente entrada de luz natural y una distribución en dos niveles que diferencia cómodamente la zona social de la zona de descanso. El espacio ha sido diseñado para aprovechar cada metro, ofreciendo estancias amplias, cómodas y perfectamente integradas. Se alquila totalmente equipada y amueblada, con electrodomésticos, mobiliario, menaje, climatización por conductos frío/calor y un baño reformado. La cocina es funcional y práctica, ideal para el día a día. Un hogar listo para entrar a vivir sin complicaciones, perfecto tanto para quienes buscan instalarse en una de las áreas más deseadas de Madrid como para quienes necesitan un espacio bien comunicado y con todos los servicios a mano. La zona Vivir en Almagro es disfrutar de uno de los barrios más elegantes y emblemáticos de Chamberí: • A pasos de Ponzano y su reconocida oferta gastronómica. • Rodeado de comercios de proximidad, panaderías artesanas, cafeterías, gimnasios y tiendas de autor. • Con excelente conexión por transporte público: metro Alonso Cano a 2 minutos, Iglesia a 5 y Canal a menos de 10 minutos caminando. Una oportunidad única para vivir en un espacio con personalidad, en un barrio vibrante y con una calidad de vida excepcional.
Exclusiva propiedad en venta en Almagro, Chamberí: Vivienda de lujo en edificio clásico, garaje y trastero
6.500.000 €
Ref: BRE0440

Exclusiva propiedad en venta en Almagro, Chamberí: Vivienda de lujo en edificio clásico, garaje y trastero

Almagro
357 m²4 Dorm.5 Baños
Presentamos esta espectacular propiedad de 357 m² en la zona más prestigiosa del barrio de Almagro, en pleno corazón de Chamberí, uno de los distritos más cotizados de Madrid. Actualmente en proceso de reforma, esta vivienda se entregará completamente amueblada y decorada con los más altos estándares de calidad. Distribución y características de la propiedad: Ubicada en la 3ª planta de un edificio clásico, esta vivienda combina a la perfección el encanto de la arquitectura tradicional con comodidades modernas. Con una distribución inteligente, cuenta con 4 amplios dormitorios, todos ellos con baño en suite, destacando el dormitorio principal que incluye un vestidor y una terraza privada. Además, la propiedad dispone de un elegante despacho independiente, un luminoso salón-comedor con tres balcones exteriores que inundan de luz natural el espacio, y una moderna cocina completamente equipada, que se integra de manera fluida con la zona de estar. Comodidades adicionales: La propiedad incluye plaza de garaje privada, 2 trasteros y está equipada con aire acondicionado, así como un avanzado sistema de domótica para el control de climatización, iluminación y otros elementos del hogar, mejorando la eficiencia y confort de la vivienda. Además, cuenta con portero físico. Ubicación privilegiada en Chamberí: Esta vivienda está situada en una de las zonas más solicitadas de Madrid, rodeada de edificios señoriales, embajadas y a escasos minutos de espacios culturales de renombre como el Museo del Romanticismo. Además, la zona ofrece una amplia oferta de restaurantes exclusivos, tiendas boutique, gimnasios y supermercados, lo que garantiza una experiencia de vida cómoda y de alta calidad. Su proximidad al Paseo de la Castellana, así como la cercanía al Museo Sorolla y al Parque del Retiro, hacen de esta propiedad una opción ideal para aquellos que buscan viviendas de lujo en Madrid en una ubicación estratégica, rodeada de todo tipo de servicios y a pocos minutos de los principales atractivos culturales y turísticos de la ciudad.
Magnífico ático en venta en Almagro – Reforma integral con 3 dormitorios, terraza y trastero
2.385.000 €
Ref: BRE0442

Magnífico ático en venta en Almagro – Reforma integral con 3 dormitorios, terraza y trastero

Almagro
194 m²3 Dorm.4 Baños
Magnífico ático en venta de 194 m² en el exclusivo barrio de Chamberí, actualmente en proceso de reforma integral. Las imágenes mostradas son renders ilustrativos del diseño final. La vivienda será entregada completamente amueblada y decorada con un estilo moderno y funcional. Este ático situado en la 6ª planta se distribuye en 3 amplios dormitorios, todos con armarios empotrados, y dos de ellos cuentan con baño en suite para ofrecer total privacidad. Además, dispone de un baño completo adicional, un gran salón-comedor con acceso a una amplia terraza, un aseo de cortesía, y una moderna cocina abierta totalmente equipada, complementada por una lavandería independiente. Este ático ha sido diseñado para ofrecer el máximo confort, y cuenta con calefacción central de gas, aire acondicionado y un sistema domótico avanzado, que permite controlar de manera eficiente la climatización, iluminación y otros elementos del hogar, proporcionando ahorro energético y un alto nivel de confort. Además, la propiedad dispone de un trastero privado, ideal para almacenamiento adicional. El edificio ofrece ascensor y portero físico, lo que asegura comodidad y seguridad en todo momento. Además, se encuentra en una ubicación privilegiada dentro de Chamberí, un barrio de prestigio en Madrid, caracterizado por su tranquilidad y cercanía a una amplia oferta de servicios de alta calidad. Chamberí es una de las zonas más solicitadas de Madrid, rodeado de zonas de ocio, restaurantes exclusivos, hospitales y una variada oferta de servicios.
Piso en venta recién reformado en Almagro
1.490.000 €
Ref: BRE0457

Piso en venta recién reformado en Almagro

Almagro
100 m²2 Dorm.2 Baños
Espectacular piso reformado por prestigiosa interiorista en la zona de Almagro. Consta de una tercera planta de 85 m² utiles que se dividen en zona de entrada con armarios empotrados bastante amplios, dos dormitorios en suite con su baño integrado y persianas automáticas. Salon-comedor diáfano dividido por una embocadura de madera de roble. Cocina con despiece de suelo de marmol gris macael y blanco macael y con carpinteria de alta calidad. Tiene tambien un pequeño lavadero donde se encuentra la caldera, la lavadora/secadora y almacenaje para productos de limpieza. Las calidades de este piso son muy altas: tiene suelo de pino melis en toda la vivienda exceptuando la cocina que es de marmol. Las encimeras y los platos de ducha de los baños son de marmol macael y la encimera de la cocina es de marmol arabescatto. Todo en este piso esta hecho a medida y diseñado con mucho cariño. Los papeles de los baños, cocina y dormitorio son de grandes marcas extranjeras de lujo. Las puertas de paso son de roble macizo y tiene techos altos (2.78m) Dispone de trastero, portero y ascensor. Este año se ha aprobado realizar una rehabilitación en la fachada del edificio para darle aun más la estética que merece y el buen cuidado que requiere. Tiene aire acondicionado por conductos de frio y calor y tiene tambien instalado el Air Zone para dividir el aire en zonas donde se quiera poner. El piso es un tercero interior a un patio de manzana muy amplio con una pequeña fuente y tiene muchisisima luz durante todo el día ya que tiene ventanas en todas las estancias. El barrio de Almagro es considerado uno de los más elegantes de Madrid ya que en sus arboladas calles se encuentran algunas de las viviendas más lujosas y señoriales de la ciudad. 
Utilizamos cookies propias y de terceros para hacer funcionar de manera segura nuestra página web y personalizar su contenido. Igualmente, utilizamos cookies para medir y obtener datos de la navegación que realiza y para ajustar la publicidad a sus gustos y preferencias. Pulse el botón "Aceptar todas" para confirmar que ha leído y aceptado la información presentada. Para administrar o deshabilitar estas cookies haga click en "Configuración". Puede obtener más información en nuestra política de cookies.
Modificar cookies
Técnicas y funcionales Siempre activas
Este sitio web utiliza Cookies propias para recopilar información con la finalidad de mejorar nuestros servicios. Si continua navegando, supone la aceptación de la instalación de las mismas. El usuario tiene la posibilidad de configurar su navegador pudiendo, si así lo desea, impedir que sean instaladas en su disco duro, aunque deberá tener en cuenta que dicha acción podrá ocasionar dificultades de navegación de la página web.
Analíticas y personalización
Permiten realizar el seguimiento y análisis del comportamiento de los usuarios de este sitio web. La información recogida mediante este tipo de cookies se utiliza en la medición de la actividad de la web para la elaboración de perfiles de navegación de los usuarios con el fin de introducir mejoras en función del análisis de los datos de uso que hacen los usuarios del servicio. Permiten guardar la información de preferencia del usuario para mejorar la calidad de nuestros servicios y para ofrecer una mejor experiencia a través de productos recomendados.
Marketing y publicidad
Estas cookies son utilizadas para almacenar información sobre las preferencias y elecciones personales del usuario a través de la observación continuada de sus hábitos de navegación. Gracias a ellas, podemos conocer los hábitos de navegación en el sitio web y mostrar publicidad relacionada con el perfil de navegación del usuario.